Ranch-Style Home on a Lakefront Lot
4,423 Sq. Ft., 4 Bed, 3 Full Baths, 2 Half Baths, Screen Porch, Large Rec Room
Our November Home Plan of the Month features a custom-built home designed to maximize enjoyment of its waterfront location. The thoughtful layout offers ample space for family gatherings and overnight guests, while its many custom details enhance the overall beauty and livability of the design.
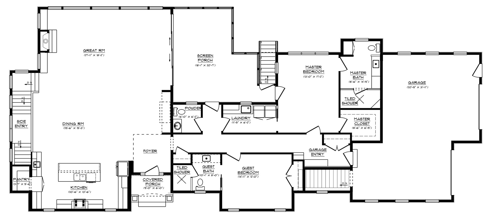
The open-concept great room, with its abundant windows, provides ample natural light and beautiful views of the lake. The well-planned layout and design, and its premium custom details all lend to the overall beauty, functionality, and enjoyment of the home.
Click the image below to take a 3D tour of this home and watch the video to see all the details and experience the quality craftsmanship PortSide is known for.
Take a 3D Tour of this Home
Watch the Video
Details of This Home:
- Open-concept great room has high ceilings and expansive windows allowing for lots of natural light, a gas fireplace has Cultured Stone face with Timber Beam mantel, and is flanked by custom-built cabinetry. Dining area has custom-built cabinets, sliding glass doors open to the 349 sq. ft. screened porch, crown molding on nearly the entire main floor gives a sophisticated finish
- Kitchen boasts custom maple cabinetry with smart-storage solutions and glass doors on uppers, ceramic tile backsplash, walk-in pantry, beverage station with sink, island with snack counter and enameled apron-front undermount sink, quarts countertops
- Primary suite Has a glass door which provides access to the screened porch and large windows offering peaceful lake views. Spacious walk-in closet, an en suite primary bathroom has custom-tiled walk-in shower, custom vanity with makeup counter and quartz countertop, and tall linen cabinet
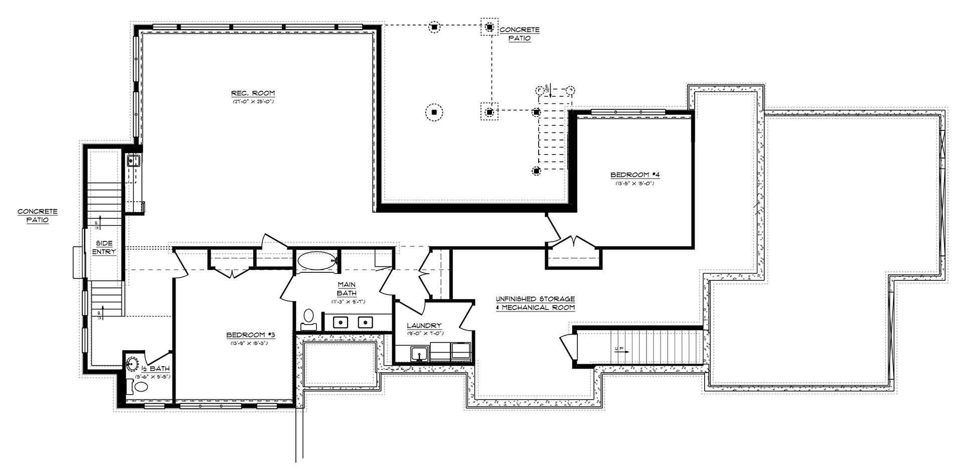
- Lookout lower-level features rec room with wet bar, two guest bedrooms, 1.5 baths and a second laundry room
- Back entry has coat closet, bench with hooks and drop zone, hall leads to the laundry room and half bath, all with ceramic tile flooring
- Front entrance has arched transom window over door with sidelights, arched covered front porch with posts. Exterior of lap siding with Cedar Impression shakes and Cultured Stone accents
Thinking about a custom-built home of your own? Learn more about our process.
