Ranch-Style Home on a Wooded Lot
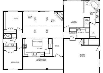
1,727 Sq. Ft., 2 bedrooms, 2 bathrooms, and Office
Our April Home Plan of the Month features a modern 1,727 sq. ft. ranch-style home that seamlessly blends contemporary design with classic touches. The homeowner, a busy entrepreneur and business owner in the hospitality industry, wanted to create a home that would provide a quiet retreat, allowing him to relax and recharge at the end of a long day. He also needed a custom space where he could focus on business when needed, while also incorporating space for visiting family and friends.
The result is a bright, modern, ranch-style home situated on a quiet lot surrounded by evergreens and hardwoods. The great room with cathedral ceiling has large windows and glass sliding doors which allow for a beautiful view of the wooded lot and access to the spacious patio. The corner fireplace adds warmth and ambiance for a relaxing environment. The office with custom-built cabinetry and shelving provides a organized, professional workspace when needed.
Take a video tour of this home to see all the details and experience the quality craftsmanship PortSide is known for.
Details of this Home:
-
-
Open-Concept Great Room of the dining and living areas feature a cathedral ceiling that expands the space. The tall windows provide calming views of the wooded lot, while the sliding glass doors off the living room open to the spacious patio. The gas fireplace has a Cultured Stone face and hearth with a cut stone top and boxed mantel with beveled edge.
-
Kitchen has custom-built maple cabinetry painted navy is paired with a wood-stained accent island and quartz countertops throughout. Includes a Kohler apron front, undermount sink, a ceramic tile backsplash, and the spacious corner walk-in pantry keeps kitchen items organized
-
Office has custom-built maple lower base cabinets with book shelves above and reach-in closet
- Primary Suite has large windows providing lots of natural light, and a spacious walk-in closet. The ensuite primary bath features a custom-built vanity with dual sink and quartz countertop, a tall linen cabinet, a ceramic-tiled, walk-in shower, and a classic whirlpool soaking tub with wood surround matching the vanity.
-
Mudroom has a bench with built-in storage and hooks above, with an adjacent laundry room with custom cabinetry and laundry sink
-
Flooring of Luxury Vinyl Plank (LVP) flooring is installed throughout most of the first floor, with carpeting in the primary and spare bedrooms
-
Oversized Two-stall Garage has a wood-grain finish overhead door with glass panels in top row
-
Clean and Modern Exterior: With a covered front porch with cedar posts, white board and batten siding with black aluminum soffit, and black metal awnings with cedar supports over the front windows and garage door
-
"I had an excellent experience working with PortSide Builders throughout the entire process. From the beginning, Al, my Home Design Consultant, collaborated with me on my design concept and was always willing to make revisions as needed. Dawn, the Selections Coordinator, gave me the freedom to make creative interior selections while also offering helpful guidance when I needed it.
My Project Coordinator, Ryan, communicated consistently and met with me at my home many times during construction to provide updates on progress. There were very few issues overall, but whenever something did come up, Ryan addressed it promptly and to my satisfaction.
Even after I moved in, a few additional issues arose, and once again Ryan was incredibly helpful in resolving them and coordinating with vendors to ensure everything was corrected.
I am very happy with my home—the quality of construction is excellent. I would absolutely recommend PortSide Builders to anyone looking to build or remodel."
Ready to start the process on your own custom-built home?
Whether you’re starting from scratch or have a plan in mind, our team is here to help you lay the foundation.
Contact us today to schedule a consultation and bring your dream home to life.
