PortSide Builders is Proud to Showcase This Home in the WHBA Parade of Homes
You're Invited: Tour this Modern Two-Story 2,393 Sq. Ft. Home, 3 Bed, 2.5 Bath, Office, Loft
If you’re planning on building a new home, or remodeling your existing one, we invite you to tour this new custom-built home and meet with our Custom Home Designers to discuss your construction needs. We are home #4 in the WHBA 2026 Spring Parade of Homes.
We’d love to learn more about your project goals and vision, and share how our design and construction process can help you achieve your goals.
Open Over Two Weekends
April 25 & 26 - 11am - 4pm
May 2 & 3 - 11am - 4pm
Location:
9356 Blanco Dr. Winneconne, 54986
From Downtown Winneconne
- Cross bridge heading west into Winneconne on Hwy 116
- Continue heading west through Winneconne on Main St
- Turn Northwest onto County B
- Continue along County B
- Turn North on Blanco Rd
- Destination is 9356 Blanco Rd
For more information and to purchase tickets go to the WHBA Parade of Homes website: https://whba.net/parade-of-homes/
Details of this Home:
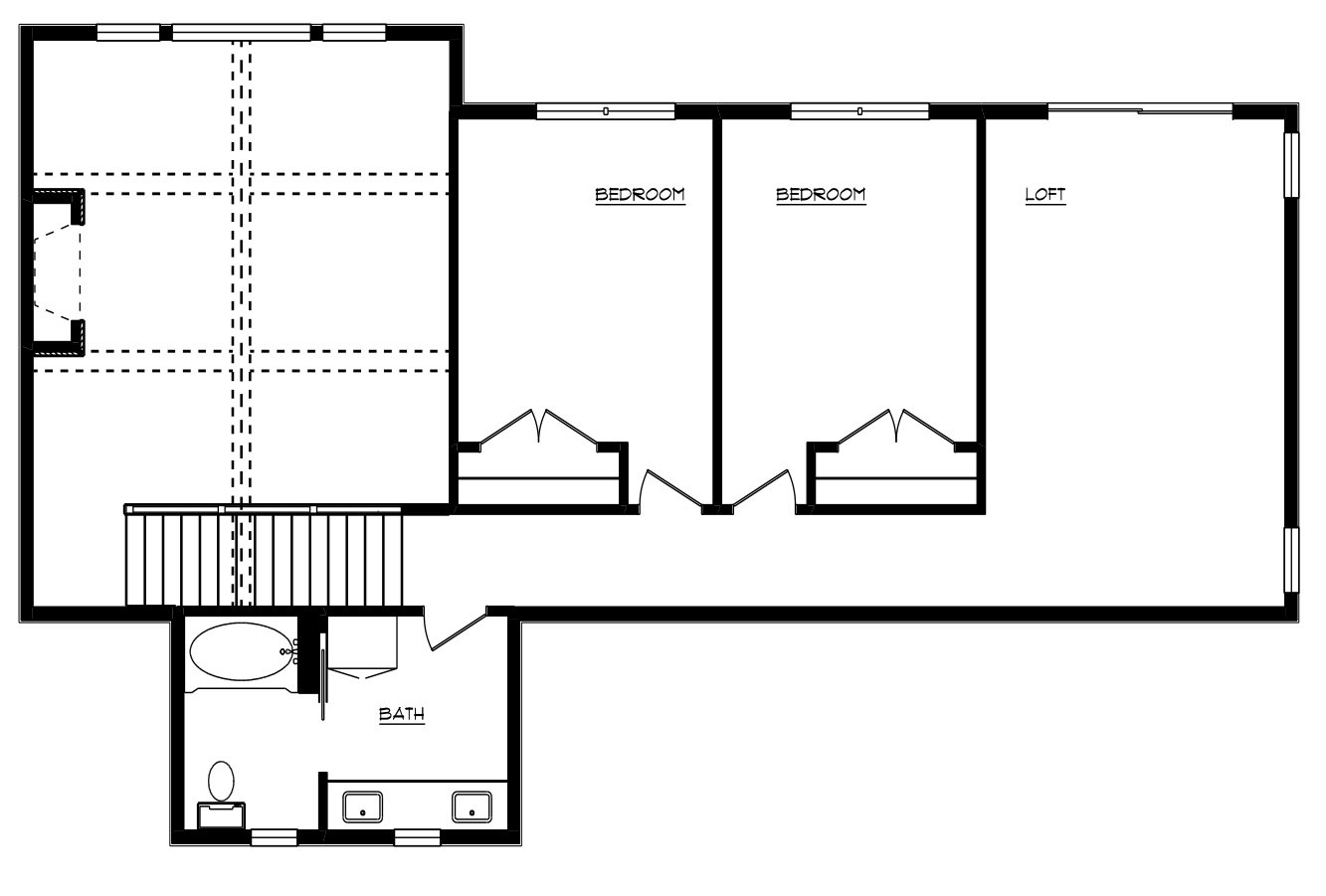
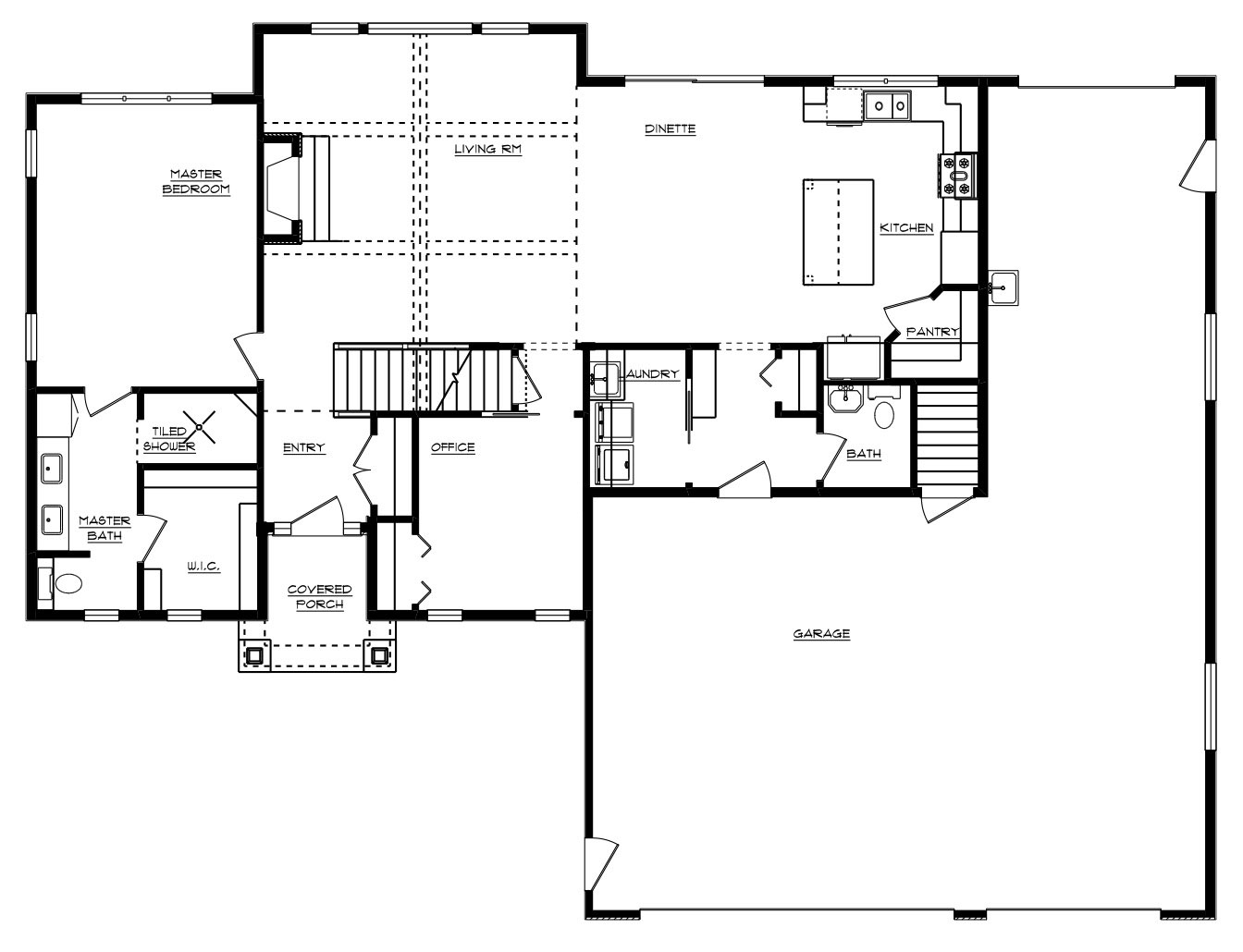
Modern Two-Story Home - 3 Bedrooms, 2.5 Baths, Office, Loft ~ 2,393 Total Sq. Ft. - 1,536 1st Fl - 857 2nd Fl
This custom-built home was designed to maximize the enjoyment of waterfront living, while allowing plentiful space and abundant storage for a growing family.
- Open-concept great room has sloped cathedral ceiling and expansive windows allowing for lots of natural light, gas fireplace has Cultured Stone face, raised hearth with cut stone top and barn beam mantle. Dining area has sliding glass doors leading to the 576 sq. ft. patio
- Kitchen has custom maple cabinetry, stainless steel undermount sink, island with snack counter, quartz countertops, custom-wood hood over range, large corner walk-in pantry
- Primary suite has walk-in closet, full bathroom with custom-tiled walk-in shower, custom vanity with dual sinks and quartz countertop. Large windows offer peaceful lake views
- Second floor features two bedrooms, full bathroom, and flexible loft area
- Back entry has coat closet, bench with hooks, laundry room with pocket door, and half bath
- Front entrance has transom window over the Smooth Star Half Lite door with sidelights, and covered front porch with Cedar posts and dropped beam
- Impressive Exterior of lap siding in Iron, with Cedar Spectrum shakes in Clay and Cultured Stone accents
Meet Zach Juadis
Custom Home Designer
Meet Wyatt Bayer
Home Remodeling Specialist
PortSide Builders is proud to work with these partners on this custom-built home:
Alberts Plastering, Inc. | Wilco Cabinet Makers Inc. | HJ Martin & Son Inc. | Gagnon Clay Products | Bay Area Granite & Marble LLC | Guilette's Seamless Gutters Inc. | Schommer Electric LLC | Noffke Lumber Inc. | S&A Heating & Cooling | Hansen Plumbing Inc. | Darboy Stone and Brick | Builders First Source | D'Luxe Design + Interiors

