Contemporary Craftsman-Style Two-Story Home
3,156 Sq. Ft., 4 bedrooms, 3 bathrooms, loft, flex room, & screened porch
Our February Home Plan of the Month showcases a contemporary, yet timeless Craftsman-style home nestled on a pine-wooded waterfront lot. Inspired by a design previously featured in our newsletter, these homeowners had the perfect foundation to begin their own lakefront home construction journey. The goal was to create a space that comfortably accommodates their family, as well as visiting family and friends. With an open-concept great room ideal for large gatherings, a second-floor loft and flex room for the kids to retreat to after a day on the water, and a screened porch for seamless indoor-outdoor living, this classic Wisconsin lakefront home is built for making memories.
Take a video tour of this home to see all the details and experience the quality craftsmanship PortSide is known for.
Details of this Home:
-
- The spacious and inviting open-concept kitchen, dining, and living room is perfect for entertaining
- Living room has cathedral ceiling with impressive floor to ceiling windows providing lots of natural light and beautiful views of the pine-wooded lot leading to the lake. A gas fireplace features Thin Cut Stone face in Halquist Manchester extending to the ceiling, and a barn beam mantel.
- Kitchen Equipped with custom-built maple cabinetry (painted uppers and natural wood-stained lowers/island), quartz countertops, a ceramic tile backsplash, and an undermount stainless-steel sink. A large walk-in pantry ensures effortless organization. Large sliding patio doors lead to the back patio
- Indoor-Outdoor Flow: 347 sq. ft. screened porch off the kitchen has sealed concrete floors, and leads to the 370 sq. ft. concrete back patio.
- Functional back entry A well-designed mudroom featuring a convenient "drop zone," a bench with hooks, a dedicated laundry room, and a large storage closet
- Primary suite has large windows overlooking the lake, and a generous walk-in closet. Primary bath features custom-built vanity with dual-sink and quartz countertop, and a custom tiled, walk-in shower
- Guest bedroom has walk-in closet and full bathroom with custom-maple cabinets, and sleek shower insert
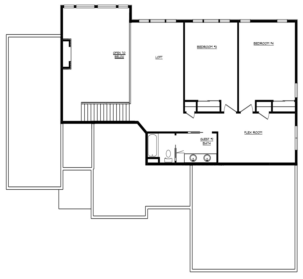
- Second floor offers two additional bedrooms, a full bathroom, loft area, and a flex room
- Flooring - Luxury Vinyl Plank (LVP) flooring on the entire first floor, with carpeting in the upper bedrooms, loft, and flex room, and ceramic tile in the second-level bath.
- Oversized two-stall garage with extra storage space
- Striking exterior is highlighted by a wood-grain front door with sidelights and transom window. The covered front porch has barn beam column, and a combination of lap and Board & Batten siding with staggered bottom shakes, and Cultured Stone accents
"This was our first time building a new home. PortSide Builders was a dream to work with. The design and product selection process was seamless and went smoothly thanks to the professional and helpful team at PortSide. They made the process much easier than we expected. We LOVE our new home!"
Ready to start the process on your own custom-built home?
Whether you’re starting from scratch or have a plan in mind, our team is here to help you lay the foundation.
Contact us today to schedule a consultation and bring your dream home to life.
